LYNGHUSET
DEN ENERGIRIGTIGE LØSNING,
FOR DEM DER BRUGER FRITIDSHUSET HELE ÅRET.
LYNGHUSET
DEN ENERGIRIGTIGE LØSNING,
FOR DEM DER BRUGER FRITIDSHUSET HELE ÅRET.
BYG SOMMERHUS I ODSHERRED
ØNSKER DU ET ENERGIRIGTIGT SOMMERHUS? BYG FRITIDSHUS MED OS
Kunne du tænke dig at få bygget et nyt energirigtigt sommerhus, der kan bruges hele året rundt, og hvor der er plads til hele familien? Så byg sommerhus sammen med os hos Lynghuset.
Vi bygger dit fritidshus, som du drømmer om, og vi gør det helt fra bunden af og efter dine ønsker. Det kan for eksempel være i Fårevejle, Højby eller i det øvrige Odsherred. Når du bygger nyt fritidshus sammen med os, får du en nøglefærdig løsning. Vi har udviklet fem forskellige typehuse, som du og din familie kan tage udgangspunkt i, når vi skal tegne lige netop jeres drømmehus.
Vi er et familieejet sommerhus-byggefirma, som er ejet af far og hans to sønner. Siden 2003 har vi bygget typesommerhuse fra bunden af, og vi har dermed over 20 års erfaring inden for vores fag. Derudover er vi alle tre uddannede håndværkere, og vi sætter en stor ære i at levere veludført arbejde i høj kvalitet.
Derfor skal du vælge vores sommerhusløsninger
Der er flere gode grunde til, at du lige netop skal vælge at bygge nyt fritidshus sammen med os. Byg fritidshus med os, og du kan selv være med til at bestemme husets udformning og byggestil, og samtidig slipper du for selv at skulle i gang med byggearbejdet eller at søge om byggetilladelser.
Vi er din totalentreprenør, så byg nyt sommerhus sammen med os, og vi hjælper dig med alt lige fra tegning af huset til ansøgning om byggetilladelse og eventuel nedrivning af et gammelt hus.
Vi sikrer dig et skræddersyet og færdigbygget sommerhus, der er indflytningsklart, når vi overdrager nøglerne. Du skal med andre ord ikke selv foretage dig noget andet end at flytte de møbler og lignende, som du gerne vil have i huset.
Når du vælger os som totalentreprenør på byggeriet, så kan du være sikker på, at vi overholder alle vores indgåede aftaler. Sommerhuset er med andre ord præcis, som du har ønsket.
Hos os får du desuden altid den samme kontaktperson under hele forløbet.
Hvad koster det at bygge nyt sommerhus?
Vores priser på et nyt sommerhus varierer alt afhængigt af dine individuelle ønsker og behov, men du kan finde en oversigt over vores priser her.
Kontakt os og byg sommerhus der lever op til dine drømme
Ønsker du en pris på lige netop dit drømmesommerhus, så kontakt os gerne.
Byg fritidshus med os og realiser drømmen om et sommerhus, hvor der er plads til hele familien!

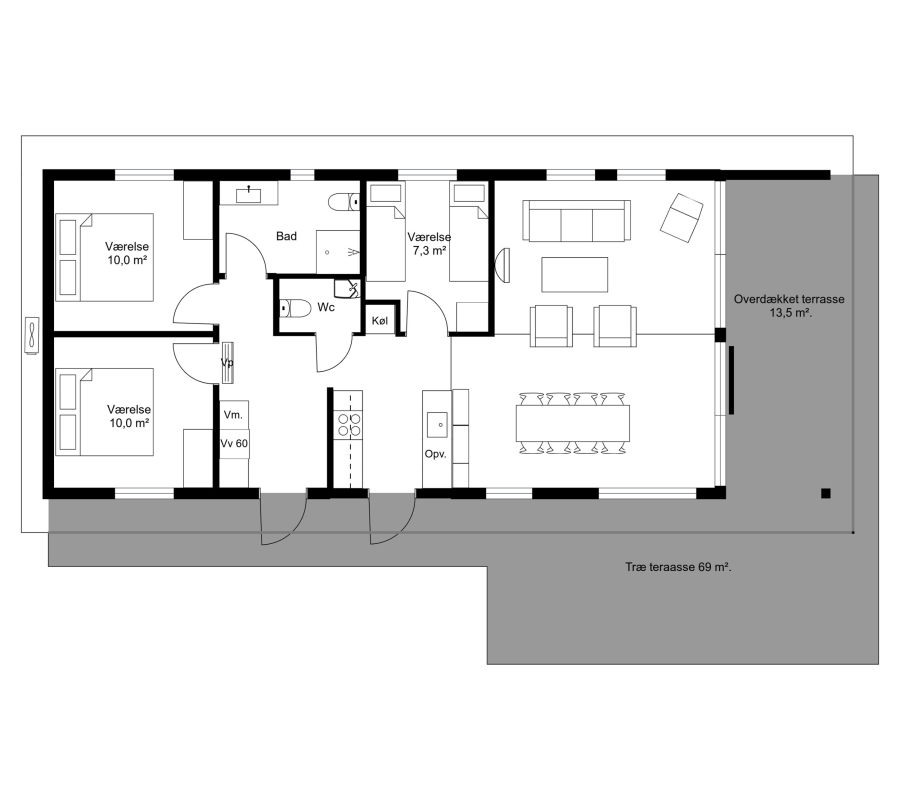
LH 88
Inkl. Træ/Alu vinduer og skydedør i stuen
(det er muligt at ændre på grundplanen)
Boligareal: 88 m2
Overdækket terrasse: 13,5 m2
Pris inkl. moms: 1.588.000 kr.

LH 92
Inkl. Træ/Alu vinduer og skydedør i stuen
(det er muligt at ændre på grundplanen)
Boligareal: 92 m2
Overdækket terrasse: 13,5 m2
Pris inkl. moms: 1.669.000 kr.

LH 95
Inkl. Træ/Alu vinduer og skydedør i stuen
(det er muligt at ændre på grundplanen)
Boligareal: 95 m2
Overdækket terrasse: 13,5 m2
Pris inkl. moms: 1.699.000 kr.

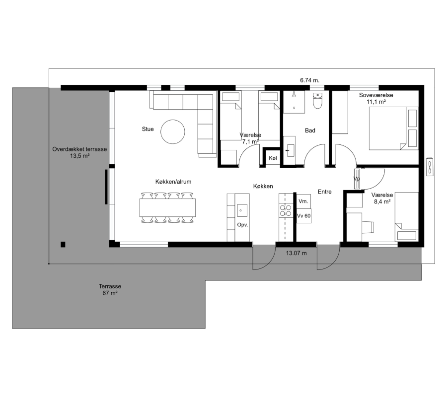
LH 109
Inkl. Træ/Alu vinduer og skydedør i stuen
Boligareal: 109m2
Hems: 6 m2
Overdækket terrasse: 13,5 m2
Pris inkl. moms: 1.893.000 kr.

LH 110
Inkl. Træ/Alu vinduer og skydedør i stuen
Boligareal: 110 m2
Overdækket terrasse: 13,5 m2
Hems: 6 m2
Pris inkl. moms: 1.966.000 kr.
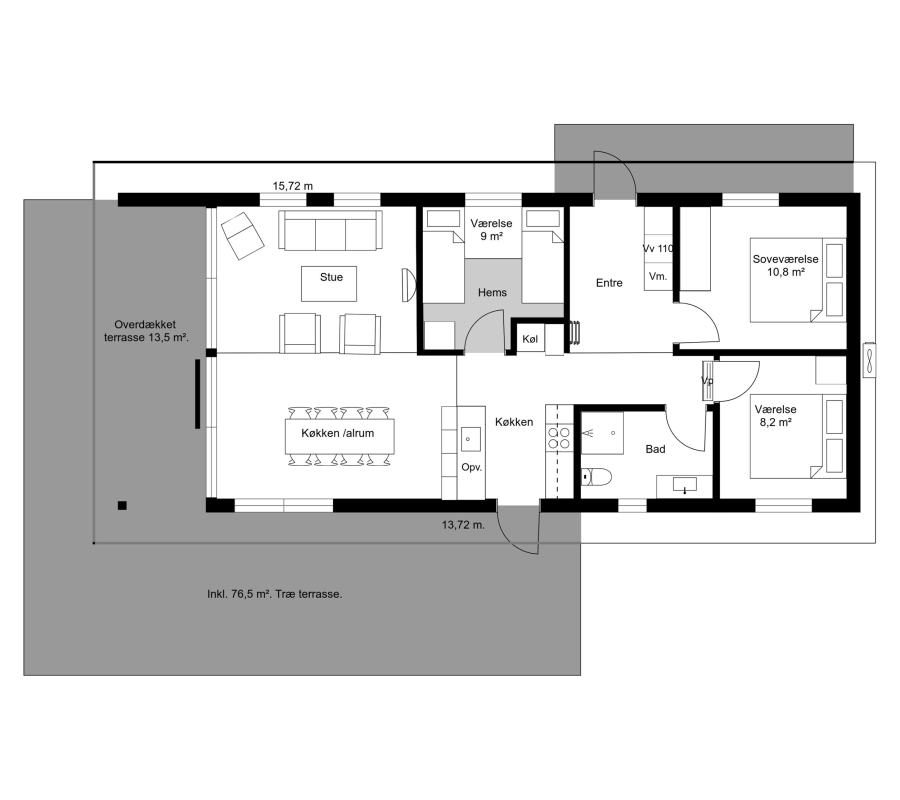
LH 114
Inkl. Træ/Alu vinduer og skydedør i stuen
Boligareal: 114m2
Hems: 6 m2
Overdækket terrasse: 16 m2
Pris inkl. moms: 1.998.000 kr.
★★★★★
november 2022.
Bedste nybyggeri vi har oplevet i et langt liv med erfaringer fra 5 tidligere nybyggerier.

Vil du have det bedste håndværk, fleksible løsninger, håndsorterede materialer og et firma der holder hvad de lover, så sæt dig til rette i stolen og overlad resten til Jimmi, Brian og Kim Kristiansen, Lynghuset A/S, 4550 Asnæs.
Margrethe og Jan Reitov
★★★★★
Det er med glæde, at vi fortæller om vores dejlige hus fra Lynghuset af 2003 APS. Alt begyndte, da vi var i Spanien i vores daværende hus dernede, hvor vi fik lyst til at rykke teltpælene op, og flytte til Danmark igen. Vi kikkede på nettet, og fandt et firma i Asnæs, i nærheden af vores grund.Og straks vi fik Kim Kristiansen i telefonen, kunne vi mærke, at her var der tale om dygtig ekspertise, og fin håndværker kemi. Vi er selv håndværkere. I løbet af byggeriet opdagede vi hurtigt, at alt fungerede efter aftale. Vi tegnede selv huset på ternet papir, således at vores møbler kunne placeres hvor det passede os. Nu omsatte Lynghuset det til professionelle tegninger. Undervejs fik vi flere gode idéer til ændringer, som enten blev udført uden beregning, eller efter faktiske merudgifter. Og nu 5 år efter byggeriet, når vi finder på nye spændende opgaver, som et ovenlys og en gæstehytte, har vi stadig glæde af de 3 robotter, som vi kalder dem, nemlig far og to sønner. Nogle af vores venner købte hus her i Odsherred og ville bygge til. Og stolt anbefalede vi vores håndværker, med stor succes igen. Nu håber vi ikke, at det lyder som ”en sang fra de varme lande”. Vi er bare så glade. Og hvis nogen ønsker at snakke med os, eller kikke på herlighederne, kan I kontakte Lynghuset og få oplysninger til en snak, eller vi stolt vil vise vores dejlige hus frem.
BIRGIT OG MOGENS MADSEN
★★★★★
Samarbejdet med Lynghuset af 2003 ApS i forbindelse med konstruktion af vores sommerhus er forløbet upåklageligt. Aftaler og priser overholdt, gode ideer til løsninger af konkrete ønsker og behov og bedst af alt: Et kvalitetsresultat!
Vores bedste anbefaling af Kim Kristiansen/medarbejdere og firmaet Lynghuset.
JENS C HANSEN
★★★★★
I 2010 byggede Lynghuset af 2003 Aps, Kim Kristiansen, et 90m2 stort sommerhus til os på Ordrup Næs. Vi fremlagde vore ønsker for Kim, som efterfølgende gav os mange gode og praktiske råd. Huset skulle stå nøglefærdigt efter tre måneder. Det gjorde det, alle aftaler blev fulgt til punkt og prikke. Ingen regninger blev større end aftalt. Ofte hører jeg fra gæsters side beundring over det gode håndværk, der er lagt i husets opførelse. Kommunikationen med Kim var let, altid fik man straks Kims venlige, imødekommende stemme, han havde altid tid til at lytte til kunden, ligemeget hvor travlt han havde i det øjeblik. Jeg nyder mit dejlige sommerhus, der fungerer perfekt.
HANNE LASSEN


